Fairhope, Alabama
Update: This item was tabled until the December meeting to allow more time for negotiations with city planning staff.
![]() |
| Highway 181 site. |
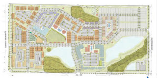
![]() |
| New Eastlake Village plan. |
NOW CALLED 'EASTLAKE VILLAGE'
A proposal by owner '181 Fairhope Avenue 2023 Llc.' to rezone 75 acres at the northwest corner of Hwy 181 and Fairhope Avenue for a new Planned Unit Development has stalled, at an impasse according to planning director Simmons -- who is recommending the planning commission deny their request during Monday's meeting because it does not fully-meet technical standards for PUDs in the city's zoning ordinance.
The project proposal includes 610 dwelling units of various types(including a 130-room hotel) and 207K square feet of commercial space (see at very bottom).
Even though city staff is recommending denial, developer 68 Ventures wants to continue the approval process to "see if the planning commission and city council agree with staff" which is always an option for any applicant -- according to documents provided to the public.
The new 'Eastlake Village' plan proposal replaces the older 'Klumpp PUD' plan that was approved in 2019, but construction never begun by the previous owner. (A 'Park City' PUD plan was informally reviewed about a year ago too.)
The planning commission may vote to agree or disagree with staff's opinion; but the final decision rests with the city council at an upcoming meeting.
SE Civil Engineering is representing the owner.
![]() |
| Development plan. |
![]() |
| Plan details. |




Comments
Do we want to depend on foreign countries for our produce? If all the farmland were sold off, how would you have us get our produce?
I hope the people doing the review and approvals are not biased and think about all the good and bad.
Love Fairhope- best to all